Spring 2025 / Advanced Studio: De Facto Providence / Instructor: Stephanie Rae Lloyd
Local 37 ironworker union headquarters
110 Elm Street, Providence, RI

My project proposal is sited on the parking lot of 110 Elm Street. To commemorate the industrial history of the site, my public -a demographic we indicated early to prompt our projects- is the Local 37 Ironworker Union of Rhode Island. The union currently holds an office in East Providence but my project argues for their relocation to the Knowledge District to revive its historical significance and density.
1863 etching of the Phenix Iron Foundry.
For most of the 19th century, the site was an iron foundry complex that manufactured hardware and machinery for Providence’s now-depleted textile industry. One building remains after being abandoned for most of the 20th century. It is now occupied by Brown Medical Center with a parking lot.
1863 etching of the Phenix Iron Foundry.
For most of the 19th century, the site was an iron foundry complex that manufactured hardware and machinery for Providence’s now-depleted textile industry. One building remains after being abandoned for most of the 20th century. It is now occupied by Brown Medical Center with a parking lot.
The Local 37 Ironworkers have three needs:
1) a space for gathering
2) office spaces for more permanent union members
3) and most importantly:
a space to accommodate a three year apprentice program a new cohort of iron workers learns the craft.
1) a space for gathering
2) office spaces for more permanent union members
3) and most importantly:
a space to accommodate a three year apprentice program a new cohort of iron workers learns the craft.

In my proposal, ironworker apprentices will build the building as a part of their three year certification program. Each cohort of apprentices advances to working on different stages of the building. The project remains a constant construction site, inspired by Shinto Ise Shrines in Japan.
For 600 years, Ise Shrines have been built and unbuilt every 20 years to distribute construction knowledge across generations. Once the shrine is complete, an

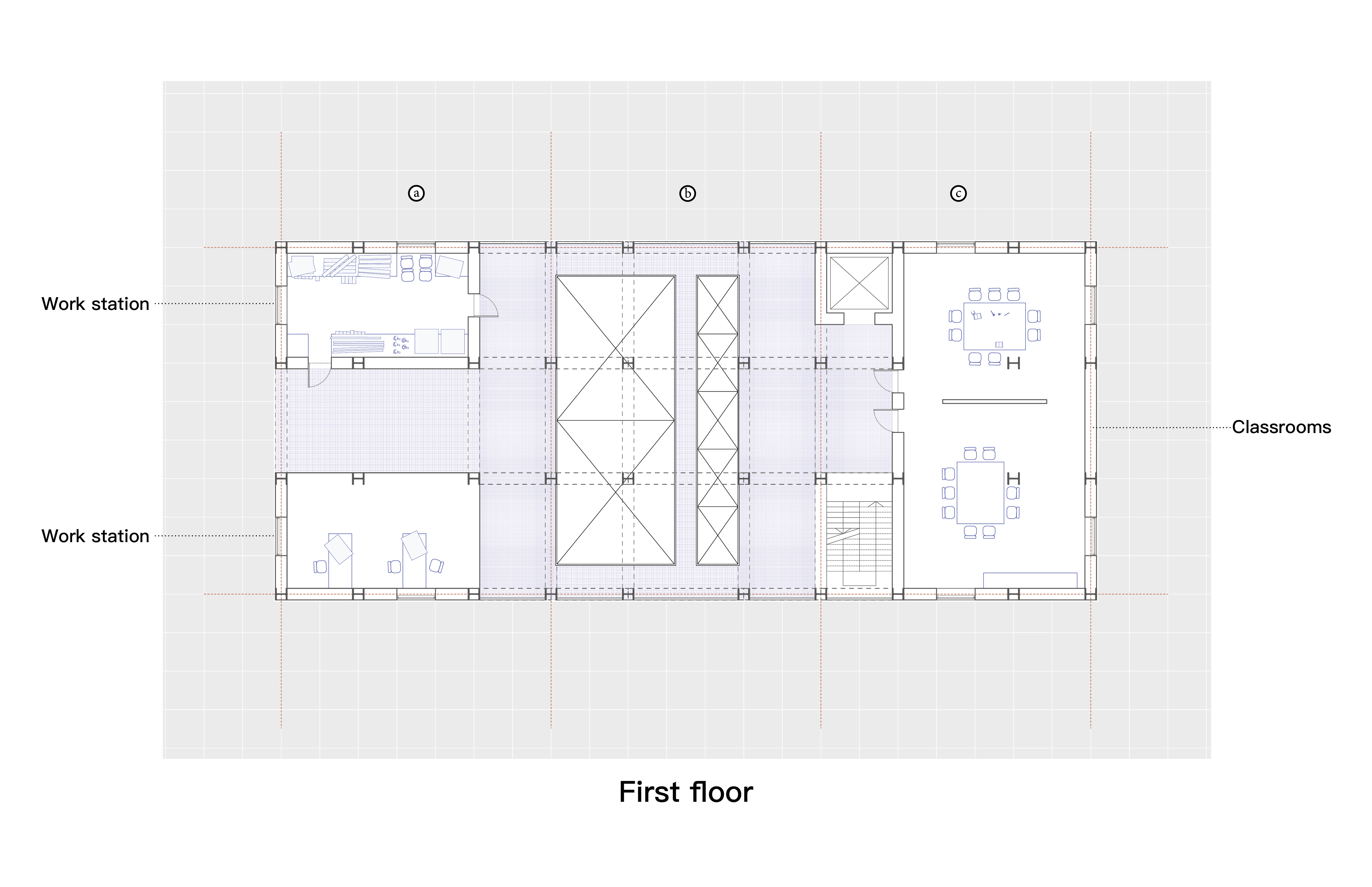
The position of the crane is the only constant. The crane is a hingepoint between two zones where the building is continuously built and unbuilt in an L-shaped configuration across three different sub-zones: a, b, and c.
At its most completed form, the structure is a four story steel frame construction with a mix of scaffolding and enclosed spaces.

The construction is split in three zones according to program, with varying degrees of enclosure. The ground floor is the same across all zones, storing material and machinery.
Zone C contains office spaces on the first floor, classrooms teaching material safety on the second and a union hall on the third floor and is the most enclosed space. Zones A and B consist of hands-on welding/building activities in both interior and exterior spaces. Interior spaces are metalworking studios and equipment storage. Exterior spaces are composed of metal catwalks and welding activities that simulate industrial scale building projects like fusing bridge parts and rigging.